The Pond-Side Studio: A 12'x16' Prefab Sound Studio & ADU
The Pond-Side Studio is an original BungalowInABox PANEL-FRAME structure. This lightweight, elegant building serves as a sound studio for a podcaster and could easily serve as an ADU.
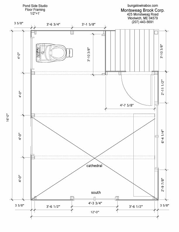
Floor Plan and Elevations:
Click a thumbnail to start this slideshow.Construction Photos: Click a thumbnail to start this slideshow.

Sills

Drilling

Building Deck

Deck

Prefab Panels

Gable End

Wall Panel

More Walls

Other Gable End

Green Metal Roofing
East Elevation
West Elevation
South Elevation
Floor Plan












