The Boothbay Cottage: A 20' x 20' Small House
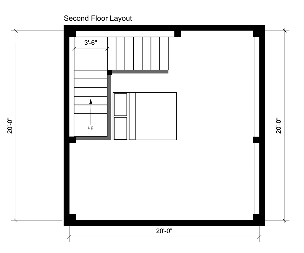
The Boothbay Cottage is a handcrafted timber frame kit designed as a high-utility small home. Built as a vacation retreat near Boothbay Harbor, Maine, this efficient 1.5-story design provides a spacious second-floor bedroom while maintaining a full kitchen, living area, and bathroom on the main level. The Boothbay is engineered to accommodate code-compliant stairs, offering safe and easy access to the upper level for year-round living. Enclosed in a high-performance SIP envelope, it provides a bright, energy-efficient sanctuary in a classic New England style.
We hope you enjoy the photos as much as we enjoyed creating this very special BungalowInABox.
Floor Plan and Elevations: Click a thumbnail to start this slideshow.
Construction Photos: Click a thumbnail to start this slideshow.
Platform Beam
Platform Built
Under Platform
Platform Decked
First Bent
Bent Raised
Second Bent
Pounding Pegs
Third Bent
Stair Opening
Joists Installed
First Plate
Second Plate
Rafter Set
Finished Frame
Another Angle
First SIP
SIP Progression
Looking Out
Gable End Panel
Installing a Roof Panel
Second Floor
Sips Installed
Installing Roofing
Finished
Finishing by Client: Click a thumbnail to start this slideshow.
Construction Photos: Click a thumbnail to start this slideshow.
Platform Beam
Platform Built
Under Platform
Platform Decked
First Bent
Bent Raised
Second Bent
Pounding Pegs
Third Bent
Stair Opening
Joists Installed
First Plate
Second Plate
Rafter Set
Finished Frame
Another Angle
First SIP
SIP Progression
Looking Out
Gable End Panel
Installing a Roof Panel
Second Floor
Sips Installed
Installing Roofing
Finished
First Floor Plan
Second Floor Plan
North/South Elevation
3d Perspective
Window Openings
First Floor
Kitchen
Stove & Sink
View from kitchen
Front Door
Staircase
Bath Window
Full Bath
Bedroom
Stairs
Exterior